CAPPA LAF
Equipment / CAPPA LAF
CAPPA LAF
Flusso laminare verticale
La cappa LAF a flusso laminare verticale è progettata per la manipolazione di eccipienti non attivi in polvere, assicurando il contenimento delle particelle in un’area confinata e la protezione dell’operatore. L’intero sistema rispetta le normative GMP e garantisce ambienti controllati anche nelle fasi più critiche del processo.

Flusso laminare verticale
Protezione totale del materiale.

Filtrazione HEPA H14
Contaminazione ridotta al minimo.

Classe A ISO 5
Sicurezza certificata in ogni condizione.
Il flusso laminare verticale crea un ambiente controllato che raggiunge la classe microbiologica A (ISO 5) in condizioni di riposo e la classe C (ISO 8) in condizioni operative, assicurando la protezione del prodotto e dell’operatore anche durante la manipolazione attiva.
COLONNA Centrale
La colonna centrale è realizzata in pannello sandwich con lamiera di acciaio inox AISI 304 e finitura Scotch Brite, a bassa rugosità superficiale (Ra < 1,6 μm), con interno a nido d'ape in alluminio.
Tutti i componenti sono complanari, con spigoli arrotondati e superfici facili da sanificare. Nel carter posteriore trovano posto le griglie di aspirazione con filtri G4, i canisters con filtri F9, il pannello HMI con pulsanti di emergenza, i pressostati per il monitoraggio dei filtri e il quadro elettrico.
L'accesso alla strumentazione è previsto dal retro della macchina tramite area tecnica, ma su richiesta è disponibile anche una versione compatta con accesso frontale completo. Tutte le giunzioni sono sigillate con silicone per garantire la tenuta e l'igiene.
Colonna Superiore
Il carter superiore è realizzato in pannello parete sandwich in lamiera di acciaio inox AISI 304, finitura esterna Scotch Brite con rugosità Ra < 1,6 µm e riempimento in nido d'ape di alluminio.
Tutti i componenti sono complanari tra loro, con spigoli arrotondati e facilmente pulibili.
Nel carter superiore trovano alloggiamento:
- Il ventilatore di mandata che alimenta i filtri assoluti e i filtri di espulsione
- I filtri assoluti H14 di mandata (del tipo a cassonetto)
- I filtri assoluti H14 per l'aria espulsa nella stanza (del tipo a cassonetto)
- Le lampade LED per l'illuminazione interna
La sostituzione dei filtri di mandata, dei filtri di espulsione e delle lampade LED può essere eseguita dal basso. Tutte le giunzioni sono rese a tenuta mediante l'utilizzo di sigillante siliconico.
Al carter superiore è fissato il sistema di compartimentazione perimetrale realizzato mediante bandelle trasparenti flessibili in PVC, che nella versione standard offre l'ingresso all'area di lavoro dalla sola zona frontale.
Sistema di controllo
I dispositivi, le apparecchiature e i componenti del sistema sono controllati da PLC, che attraverso l'interfaccia operatore touch screen consente la gestione e la supervisione del sistema cappa.
Le funzionalità principali del sistema di controllo sono:
- Gestione del ventilatore
- Visualizzazione allarmi filtri e ventilatore
- Interfaccia grafica
Il sistema ha 2 modalità operative:
- Modalità locale (standard): la macchina può essere avviata e arrestata in manuale dall'operatore.
- Modalità remota (opzionale): la macchina si avvia automaticamente quando il sistema HVAC di reparto è in funzione.
colonna centrale
La colonna centrale è realizzata in pannello sandwich con lamiera di acciaio inox AISI 304 e finitura Scotch Brite, a bassa rugosità superficiale (Ra < 1,6 μm), con interno a nido d’ape in alluminio. Tutti i componenti sono complanari, con spigoli arrotondati e superfici facili da sanificare. Nel carter posteriore trovano posto le griglie di aspirazione con filtri G4, i canisters con filtri F9, il pannello HMI con pulsanti di emergenza, i pressostati per il monitoraggio dei filtri e il quadro elettrico. L’accesso alla strumentazione è previsto dal retro della macchina tramite area tecnica, ma su richiesta è disponibile anche una versione compatta con accesso frontale completo. Tutte le giunzioni sono sigillate con silicone per garantire la tenuta e l’igiene.
colonna superiore
Il carter superiore è realizzato in pannello parete sandwich in lamiera di acciaio inox AISI 304,
finitura esterna Scotch Brite con rugosità Ra < 1,6 µm e riempimento in nido d’ape di alluminio.
Tutti i componenti sono complanari tra loro, con spigoli arrotondati e facilmente pulibili.
Nel carter superiore trovano alloggiamento:
- Il ventilatore di mandata che alimenta i filtri assoluti e i filtri di espulsione
- I filtri assoluti H14 di mandata (del tipo a cassonetto)
- I filtri assoluti H14 per l’aria espulsa nella stanza (del tipo a cassonetto)
- Le lampade LED per l’illuminazione interna
La sostituzione dei filtri di mandata, dei filtri di espulsione e delle lampade LED può essere
eseguita dal basso. Tutte le giunzioni sono rese a tenuta mediante l’utilizzo di sigillante siliconico.
Al carter superiore è fissato il sistema di compartimentazione perimetrale realizzato mediante bandelle
trasparenti flessibili in PVC, che nella versione standard offre l’ingresso all’area di lavoro dalla sola
zona frontale.
Sistema di controllo
I dispositivi, le apparecchiature e i componenti del sistema sono controllati da PLC,
che attraverso l’interfaccia operatore touch screen consente la gestione e la supervisione
del sistema cappa. Le funzionalità principali del sistema di controllo sono:
- Gestione del ventilatore
- Visualizzazione allarmi filtri e ventilatore
- Interfaccia grafica
Il sistema ha 2 modalità operative:
- Modalità locale (standard):
la macchina può essere avviata e arrestata in manuale dall’operatore - Modalità remota (opzionale):
la macchina si avvia automaticamente quando il sistema HVAC di reparto è in funzione.
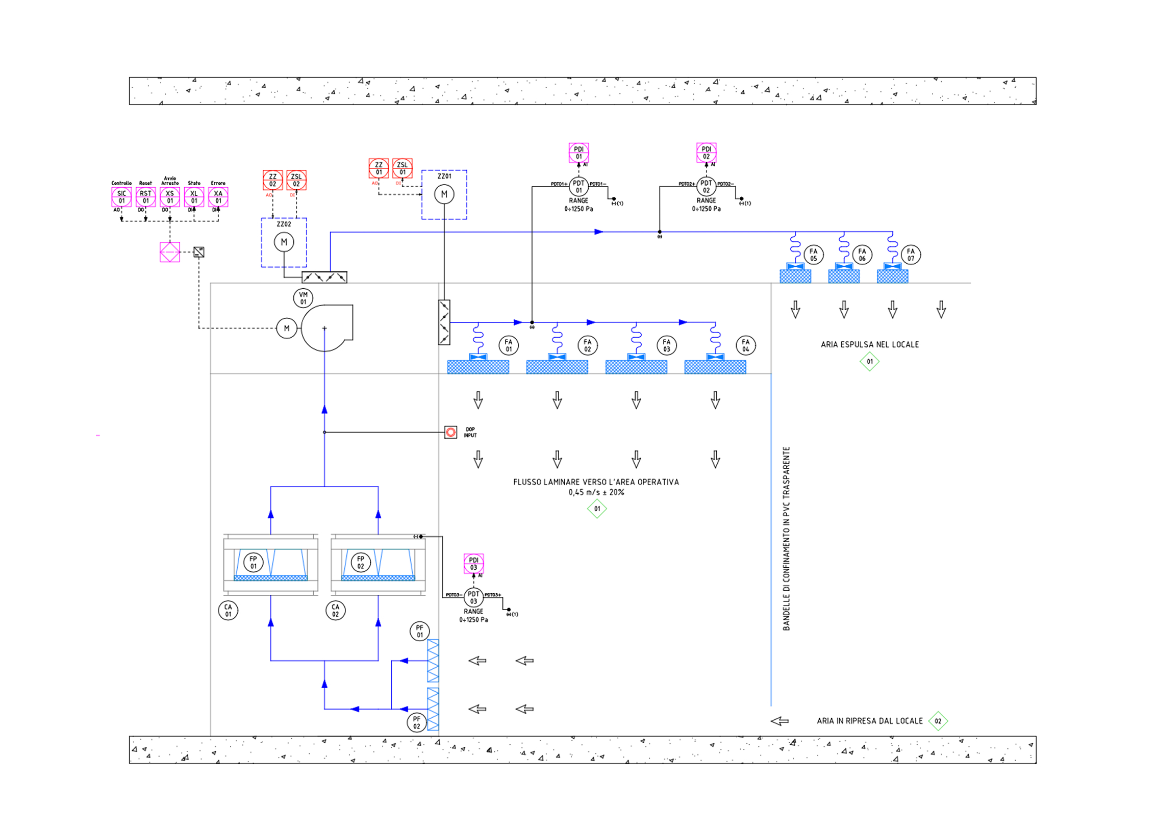
Il sistema di ventilazione lavora a parziale ricircolo, aspirando aria dalla zona di lavoro, convogliandola attraverso una serie di filtri progressivi e restituendola purificata, per mantenere l’integrità del flusso unidirezionale e una costante depressione interna.
L’aria attraversa un triplo stadio di filtrazione composto da prefiltri G4, filtri F9 in canister con sistema BIBO e filtri assoluti HEPA H14, assicurando la rimozione efficace di particelle e agenti contaminanti prima del reintegro nell’ambiente.
| Filtrazione in mandata | N°4 x filtro HEPA H14 dim. 610x610x150 |
| Velocità flusso in mandata | 0,45 m/s ± 20% a 150 mm dal filtro |
| Gestione flussi di aria | Flusso entrante dalla stanza alla cappa |
| Filtrazione in ripresa | N°2 x prefiltro G4 dim. 592x592x48 N°1 x prefiltro F9 (in canister BIBO) dim. 592x592x287 |
| Filtrazione in espulsione | N°2 x filtro HEPA H14 dim. 610x305x150 |
| Ventilazione in mandata | Elettroventilatore centrifugo con inverter |
| Illuminazione | N°4 x Lampade LED incassate nel LAF |
| Compartimentazione | Bandelle in PVC trasparente flessibile complete di telaio in acciaio inox AISI 304 |
| Strumenti | Trasmettitori di pressione differenziale per intasamento filtri Trasmettitori di pressione differenziale per gestione PID ventilatori |
| Grado ambientale sotto laf | Grado A e ISO 5 at rest Grado C e ISO 8 in operation |
| Installazione | Appoggio a pavimento e pendinamento a soffitto |
| Filtrazione in mandata | N°4 x filtro HEPA H14 dim. 610x610x150 |
| Velocità flusso in mandata | 0,45 m/s ± 20% a 150 mm dal filtro |
| Gestione flussi di aria | Flusso entrante dalla stanza alla cappa |
| Filtrazione in ripresa | N°2 x prefiltro G4 dim. 592x592x48 N°1 x prefiltro F9 (in canister BIBO) dim. 592x592x287 |
| Filtrazione in espulsione | N°2 x filtro HEPA H14 dim. 610x305x150 |
| Ventilazione in mandata | Elettroventilatore centrifugo con inverter |
| Illuminazione | N°4 x Lampade LED incassate nel LAF |
| Compartimentazione | Bandelle in PVC trasparente flessibile complete di telaio in acciaio inox AISI 304 |
| Strumenti | Trasmettitori di pressione differenziale per intasamento filtri Trasmettitori di pressione differenziale per gestione PID ventilatori |
| Grado ambientale sotto laf | Grado A e ISO 5 at rest Grado C e ISO 8 in operation |
| Installazione | Appoggio a pavimento e pendinamento a soffitto |
Ogni elemento strutturale è progettato per garantire igiene e facilità di pulizia: la colonna centrale e il carter superiore sono realizzati in acciaio inox AISI 304 con finitura Scotch Brite e pannelli sandwich a bassa rugosità, con superfici complanari e angoli arrotondati.
La zona di lavoro è delimitata da bandelle in PVC trasparente, supportate da un telaio in acciaio inox, che consente l’accesso frontale standard e garantisce una compartimentazione efficace tra l’ambiente interno e quello esterno. L’intero sistema è supervisionato da un PLC con interfaccia operatore touch screen, che consente la regolazione automatica del ventilatore, la visualizzazione degli allarmi e la gestione del funzionamento locale o remoto in sincronia con l’impianto HVAC.
| Codice | MCCAPPA0001 | MCCAPPA005 | |
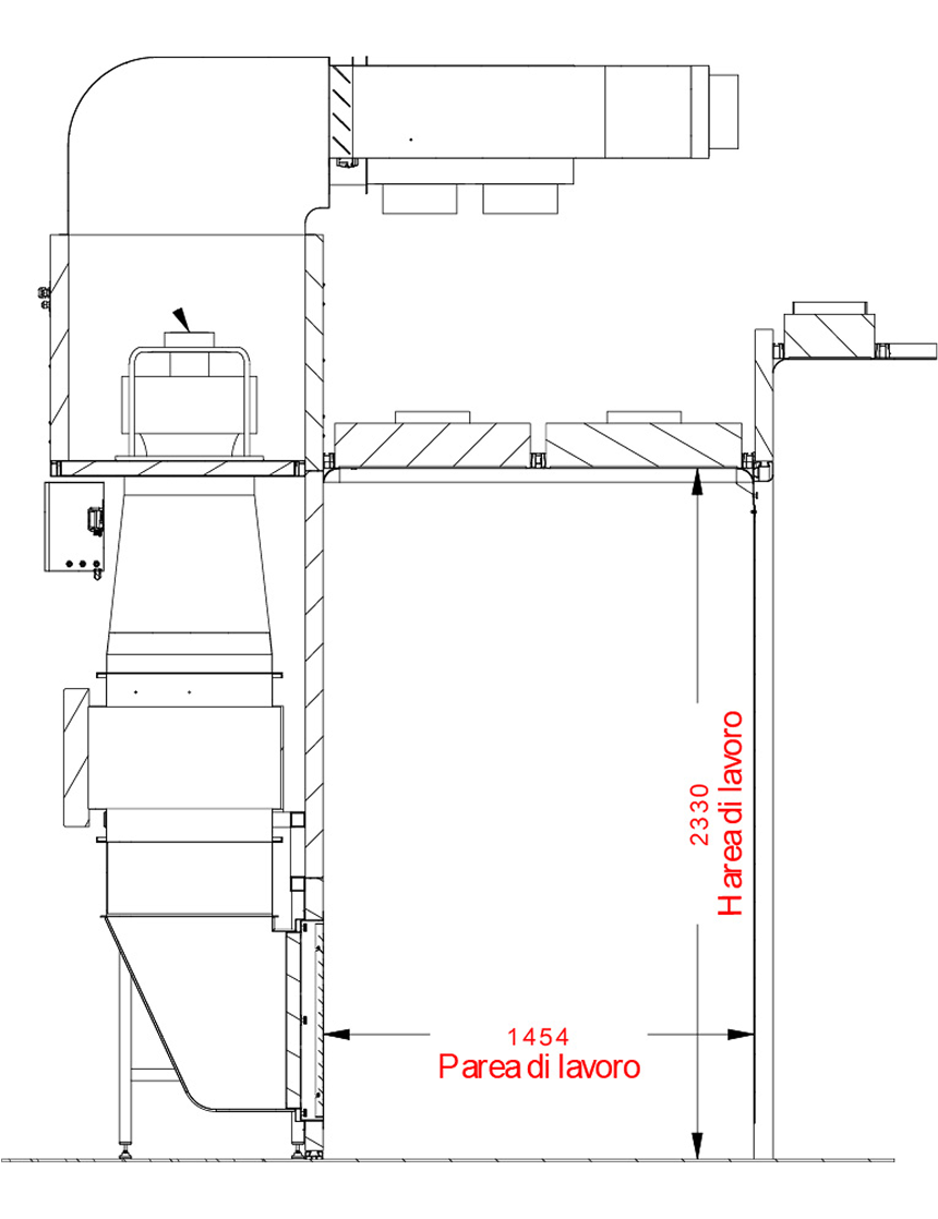
| Ingombri esterni LxPxH1 | mm | 1470x2330x3630 | 1750x2440x3720 |
| Dimensioni area di lavoro LxPxH | mm | 1410x1350x2225 | 1750x1450x2230 |
| Peso | kg | 530 | 660 |
| Portata aria zona LAF | m3/h | 2800 | 4300 |
| Portata aria zona espulsa | m3/h | 1400 | 1050 |
| Rumorosità | dB(A) | < 70 | < 70 |
| Illuminazione | lux | 750 | 750 |
| Alimentazione elettrica | 400 V 3P+N+T @50 Hz | ||
| Potenza elettrica | kW | 4,4 | 4,7 |
| Consumo elettrico 2 | A | 3,7 | 4 |